Masonry Retaining Walls now Available
Now available in RISAFoundation v9 is the ability to design masonry retaining walls and strip footings with the latest US codes. Simply define...
Steel
Wood
Concrete
Education
RISA-3D
RISAFloor
RISAConnection
ADAPT-Builder
RISACalc
RISAFoundation
ADAPT-PT/RC
RISASection
RISA-2D
ADAPT-Felt
Link Utilities
![]()
Try the Complete RISA Suite for
10 Days FREE
Training
Webinars
Reach an Engineer
Tips & Tricks
Design Codes
Case Studies
New Features
Cloud Licensing

RISA Education
Video Library
Downloads
Licensing Support
Customer Portal
Product Documentation
System Requirements
Specifications
Online Help
Get Support
Contact
Careers
Employee Spotlight
Nemetschek
License Agreement
Privacy Policy
Open BIM
Partners

About Us
RISAFoundation has the ability to define different types of wall footings. You can define these from the Draw Wall Footings toolbar:
Here is a rundown of the different types and which one may be appropriate for your application:
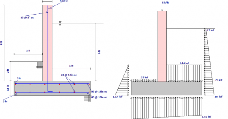
This is the traditional retaining wall. This type of wall will perform all stability checks (sliding, overturning and soil bearing) due to hydrostatic pressures and any superimposed load on the wall. This wall type is a single entity in that the wall and footing are considered together and defined in the Wall Footing Definitions spreadsheet.
This is a simplified version of the retaining wall and would be used in cases where you have a simple strip footing layout. Hydrostatic pressures on the wall are not a concern here. This type of wall footing pares down the input and output in the program, removing a lot of the complexity necessary for retaining walls, but not required for a simple strip footing. This wall type would generally be used for simple gravity loads. This wall type is also a single entity in that the wall and footing are considered together and defined in the Wall Footing Definitions spreadsheet.
This is a wall type that is really a generation utility that will create a slab, slab design strip(s), and a stem wall to represent your wall footing. This type of footing would not be controlled by the Wall Footing Definitions, but rather by each individual entity (slab, slab design strip and stem wall) separately. This option generates these elements one time and then allows you to edit/modify these elements as necessary.
The main purpose of this type of wall is to allow for any customization and to allow the program to perform a finite element analysis of the footing itself. The other two wall types do not perform an FEA on the footing itself.
Now available in RISAFoundation v9 is the ability to design masonry retaining walls and strip footings with the latest US codes. Simply define...
New in RISAFoundation V7 is a Stem Wall element. This element would be drawn on a slab element for the purpose of transferring wall loads into the...
Wall Panel Forces Spreadsheet The power of RISA is the easy to access output. The Wall Panels have all the calculations and forces displayed in...