Integrated Column Code Checks in ADAPT-Builder
The latest release of ADAPT-Builder (22.0.1) includes an integrated concrete column code check feature that allows users to easily check concrete...
Steel
Wood
Concrete
Education
RISA-3D
RISAFloor
RISAConnection
ADAPT-Builder
RISACalc
RISAFoundation
ADAPT-PT/RC
RISASection
RISA-2D
ADAPT-Felt
Link Utilities
![]()
Try the Complete RISA Suite for
10 Days FREE
Training
Webinars
Reach an Engineer
Tips & Tricks
Design Codes
Case Studies
New Features
Cloud Licensing

RISA Education
Video Library
Downloads
Licensing Support
Customer Portal
Product Documentation
System Requirements
Specifications
Online Help
Get Support
Contact
Careers
Employee Spotlight
Nemetschek
License Agreement
Privacy Policy
Open BIM
Partners

About Us
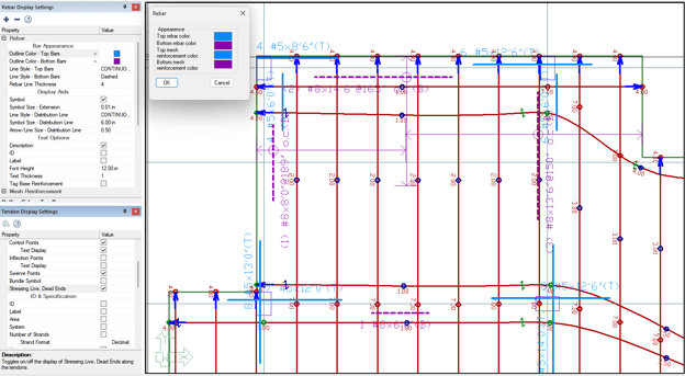
Elevate your outputs using the recently enhanced Tendon and Rebar Display Managers in ADAPT-Builder (23.0.0). ADAPT-Builder (23.0.0) gives users more control over the appearance of tendons and reinforcement thus saving time when it comes to creating tendon and reinforcement plans for submittals.

Seamless Output:
Print to a printer, PDF file, or export to CAD with confidence, ensuring that the output aligns with what has been set up in the model space.
Customize Reinforcement with Ease:
Effortlessly adjust line types, thickness, symbols, coloring, and more to meet CAD standards before printing to PDF or exporting to DWG/DXF files.
Tailored Tendon Text:
Choose what info to display along the tendon. Move tendon text easily to avoid overlap on the screen.

Layered Excellence:
Exported tendons and reinforcement and their associated information get exported to different layers in DWG/DXF files for easy modification within CAD.
Codes and Methodology:
The Tendon and Rebar Display Managers are available for all design codes.

For more information on ADAPT-Builder features, check out our release notes below.
The latest release of ADAPT-Builder (22.0.1) includes an integrated concrete column code check feature that allows users to easily check concrete...
The latest release of ADAPT-Builder (23.0.0) includes the ability to design one-way slabs and beams for the effects of torsion. Through the shear...
Reinforced and post-tensioned concrete structures in today's construction environment demand more efficient and reliable analysis, design, and...