Viewing column information graphically in RISAFloor

Viewing column information graphically in RISAFloor

RISAFloor column results are available in the results spreadsheets, but you may not be aware that you can also graphically review the input and results of columns. To do this you need to customize your toolbar, which is an option available in the Tools menu:

Floor Graphic Column Results 01 300x107 2x

Add the Column Input and Column Result buttons to your toolbar:

Floor Graphic Column Results 02

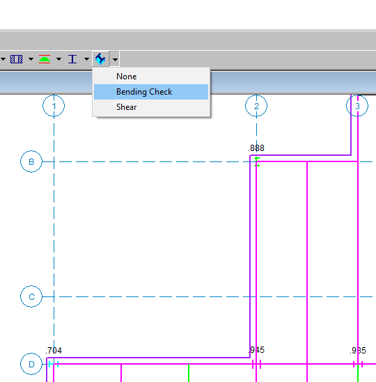
The column input and column results buttons will now be available on your toolbar. Click the black drop down arrow to see which sizes were chosen during the member optimization (Design Results) or what the Code Check values are:

Floor Graphic Column Results 03 Floor Graphic Column Results 04

 

You may also be interested in

 
Exclude Results based on Selection in RISAFloor and RISAFoundation
OCTOBER 30, 2020

Exclude Results based on Selection in RISAFloor and RISAFoundation

New to RISAFloor and RISAFoundation is the ability to exclude results...

Read More
Understanding Your RISA-3D Model Using Graphics
NOVEMBER 01, 2019

Understanding Your RISA-3D Model Using Graphics

The Detail Report is great for reviewing the results and design of one...

Read More
Improved Result Access in RISA
JUNE 15, 2015

Improved Result Access in RISA

This video tutorial will demonstrate how to find quickly review the...

Read More